Timothy Green / eXp Realty

4009 15A Street SW Calgary , Alberta , T2T 4C8

 MLS® # A2295253

5 bedrooms

5 bathrooms

2,807 sqft

Sign up to View

Days on Market

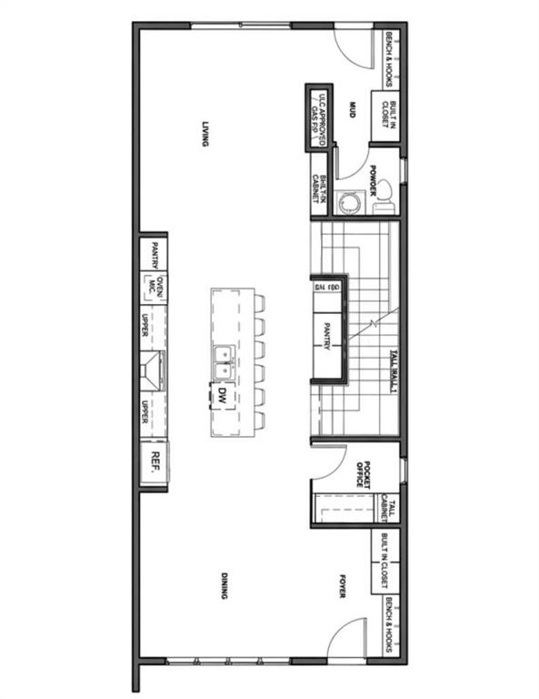
This gorgeous three-story duplex on a premier Altadore street offers an expansive floor plan meticulously designed for modern living. This build features two curated color palettes—light and dark. Please refer to photos of the builder's previous builds for a preview of both finish styles. The main level welcomes you with a formal foyer and an elegant dining room that flows into a chef-inspired kitchen featuring a massive quartz island, a walk-in pantry, and a dedicated pocket office—perfect for working from...

Read More

Essential Information

  • MLS® #
    A2295253
  • Full Bathrooms
    4
  • Partial Bathrooms
    1
  • Year Built
    2026
  • Property Type
    Semi Detached (Half Duplex)
  • Property Style
    3 (or more) Storey
    Attached-Side by Side
  • MLS® #
    A2295253
  • Full Bathrooms
    4
  • Partial Bathrooms
    1
  • Year Built
    2026
  • Property Type
    Semi Detached (Half Duplex)
  • Property Style
    3 (or more) Storey, Attached-Side by Side
  • MLS® #
    A2295253
  • Full Bathrooms
    4
  • Partial Bathrooms
    1
  • Year Built
    2026
  • Property Type
    Semi Detached (Half Duplex)
  • Property Style
    3 (or more) Storey
    Attached-Side by Side

Community Information

  • Postal Code
    T2T 4C8
  • Postal Code
    T2T 4C8
  • Postal Code
    T2T 4C8

Services & Amenities

  • Parking
    Double Garage Detached
  • Parking
    Double Garage Detached
  • Parking
    Double Garage Detached

Interior

  • Floor Finish
    Carpet
    Hardwood
    Tile
  • Heating
    Forced Air
  • Interior Feature
    Built-in Features
    Chandelier
    Closet Organizers
    Double Vanity
    High Ceilings
    Kitchen Island
    No Animal Home
    No Smoking Home
    Open Floorplan
    Quartz Counters
    Soaking Tub
    Walk-In Closet(s)
    Wet Bar
  • Floor Finish
    Carpet, Hardwood, Tile
  • Heating
    Forced Air
  • Interior Feature
    Built-in Features, Chandelier, Closet Organizers, Double Vanity, High Ceilings, Kitchen Island, No Animal Home, No Smoking Home, Open Floorplan, Quartz Counters, Soaking Tub, Walk-In Closet(s), Wet Bar
  • Floor Finish
    Carpet
    Hardwood
    Tile
  • Heating
    Forced Air
  • Interior Feature
    Built-in Features
    Chandelier
    Closet Organizers
    Double Vanity
    High Ceilings
    Kitchen Island
    No Animal Home
    No Smoking Home
    Open Floorplan
    Quartz Counters
    Soaking Tub
    Walk-In Closet(s)
    Wet Bar

Exterior

  • Lot/Exterior Features
    Private Yard
  • Roof
    Asphalt Shingle
  • Construction
    Wood Frame
  • Lot/Exterior Features
    Private Yard
  • Roof
    Asphalt Shingle
  • Construction
    Wood Frame
  • Lot/Exterior Features
    Private Yard
  • Roof
    Asphalt Shingle
  • Construction
    Wood Frame

Additional Details

  • Zoning
    R-CG
  • Zoning
    R-CG
  • Zoning
    R-CG

$1,549,000

4009 15A Street SW

Schedule Tour
Contact Agent

$7054/month
Est. Monthly Payment
$
$
%
Learn More